新闻活动
蒙台梭利教育理念将环境比喻为
“有准备的导师”
我们为孩子准备的环境
本身就是一个生动的教育者
一座有秩序、美观且支持充足探索的幼儿园
它将鼓励每个孩子自由探索,大胆建构
本项目位于济南市槐荫区北部,地处高铁围合北地块房地产开发项目(杨柳春风)X-1地块,用地面积约15404.44㎡,土地性质为教育科研用地(A3)。项目现状用地平整,南侧毗邻杨柳春风项目配套中小学,北、西、东三面均与济南杨柳春风居住小区相接。
本项目场地较为有限,需容纳27个幼儿园班级,并为800余名幼儿及90多名教师提供就餐、学习与活动空间。因此,如何在设计中合理组织师生学习、工作与生活的流线,确保各区域畅通有序、互不干扰,显得尤为关键。
在设计中,需充分考虑不同年龄层的使用需求。应追求开放的空间布局、复合的功能设置以及灵活的场所属性,以适应不同年龄层、不同性质的活动需要,支持多样化的教学方式,同时强调交流与互动,保障幼儿健康成长。
国风雅韵——重塑新中式人文环境
项目采用了充满国风韵味的新中式建筑形制,兼顾国风韵味与幼儿园使用特性。屋顶采用改良式坡屋顶设计,施工图设计中精准控制坡屋顶的坡度、屋脊高度及结构节点,结合铝板与深色金属漆的施工搭配,将传统中式建筑的厚重质感,通过现代施工工艺转化为轻盈简洁的建筑形态。
改良坡屋顶檐口细节节点图
建构与场域——色彩流动的活力乐园
漫步在大明湖周边的街巷中,常常可以看到红砖色调的老建筑,山东省图书馆就是其中的典型代表。在本项目的整体建筑立面上,我们选用仿红砖质感涂料与木纹铝合金材料,营造出温暖的主基调。这不仅是对泉城传统民居文化的一种延续,也为幼儿园增添了浓郁的人文气息。与此同时,浅灰色铝合金与深色金属漆的运用,为立面注入了现代感;而彩釉印刷玻璃和彩色金属格栅,则进一步提升了园区的活泼氛围。
在设计过程中明确建筑整体造型的尺寸参数、线条走向、节点衔接要求。其中造型尺寸参数需贴合幼儿园空间尺度,严控建筑层高、立面开间及进深尺寸,适配幼儿活动及教学使用需求;线条走向以简约中式线条为主,明确横向、纵向线条的标高、间距及延伸范围,规避繁复设计,凸显轻盈感;节点衔接重点明确造型线条与立面饰面的衔接方式,界定衔接节点的施工工艺及密封、固定要求,确保造型与各部位衔接顺畅、过渡自然,通过立面分区、材质搭配,凸显新中式风格的精致感,清晰传递传统中式学院的建筑内涵,确保造型落地效果。
围合空间——室内外空间融合 功能与体验兼顾
采用经典的围合式空间布局,以中心庭院为核心,四周建筑环抱形成整体。这里成为促进儿童充分互动交流的场所。本项目打破传统幼儿园封闭式走廊的设计模式,秉持“室内外空间融合、功能与体验兼顾”的核心原则。
在施工落地层面,明确连廊地面采用防滑、耐磨、易清洁的环保材料,以适应幼儿奔跑与活动需求,并落实无障碍设计,确保连廊与各功能区域顺畅衔接,消除高差障碍。连廊的施工图设计不仅满足了晴雨天的通行需要,更通过对色彩、光影与空间的细致把握,将交通通道转化为兼具探索性与趣味性的活动空间。这契合幼儿园“释放儿童天性、鼓励自由交流”的核心诉求,实现了设计理念与施工落地的高度统一。
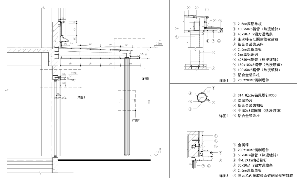
风雨连廊细节节点图
环保材质——确保儿童活动的安全性
场地采用塑胶材质,确保儿童活动安全。活动布局充分契合儿童成长需求,旨在培养其身体协调能力、安全意识与色彩形态感知能力。场地中增设了整体塑胶铺面、多彩铺装、木质平台及适合幼儿的活动器材设施。
立面设计:
建筑造型采用新中式风格,通过连续的柱廊和丰富的中式建筑形态,既展现出精致而富有层次的建筑效果,也清晰传递出传统中式学院的建筑内涵。项目在注重建筑与原有环境和谐统一的同时,也体现了当代校园环境品质的显著提升。立面设计融入现代风格,运用真石漆、金属、彩釉玻璃等材料,并结合景观连廊的彩色铝合金格栅,整体色调简洁活泼,建筑立面舒展而清爽。
立面材料分析:建筑立面以砖纹质感涂料与木纹铝合金奠定温暖的主色调,同时运用浅灰色铝合金和深色金属漆增强立面的现代气息;彩釉印刷玻璃与彩色金属格栅的融入,则为幼儿园增添了活泼愉悦的氛围。
< 结语 | 一所幼儿园的设计答卷>
孩子们对世界充满好奇,“为什么”是他们最常说的语言。虽然还不识字,他们却以独特的方式“阅读”着生活这本百科全书;虽然尚未远行,他们的脑海中早已装着一个天马行空的“世界”。我们致力于营造优雅的人文氛围、活力的公共空间、开放的互动场所以及安全的校园环境,希望通过每一处细节的精心考量,为孩子们创造一个更加契合心智发育、助力健康成长的空间。
扫描二维码关注我们
新作 | 童心织梦,院落成诗:济南市杨柳春风幼儿园设计
蒙台梭利教育理念将环境比喻为
“有准备的导师”
我们为孩子准备的环境
本身就是一个生动的教育者
一座有秩序、美观且支持充足探索的幼儿园
它将鼓励每个孩子自由探索,大胆建构
本项目位于济南市槐荫区北部,地处高铁围合北地块房地产开发项目(杨柳春风)X-1地块,用地面积约15404.44㎡,土地性质为教育科研用地(A3)。项目现状用地平整,南侧毗邻杨柳春风项目配套中小学,北、西、东三面均与济南杨柳春风居住小区相接。
本项目场地较为有限,需容纳27个幼儿园班级,并为800余名幼儿及90多名教师提供就餐、学习与活动空间。因此,如何在设计中合理组织师生学习、工作与生活的流线,确保各区域畅通有序、互不干扰,显得尤为关键。
在设计中,需充分考虑不同年龄层的使用需求。应追求开放的空间布局、复合的功能设置以及灵活的场所属性,以适应不同年龄层、不同性质的活动需要,支持多样化的教学方式,同时强调交流与互动,保障幼儿健康成长。
国风雅韵——重塑新中式人文环境
项目采用了充满国风韵味的新中式建筑形制,兼顾国风韵味与幼儿园使用特性。屋顶采用改良式坡屋顶设计,施工图设计中精准控制坡屋顶的坡度、屋脊高度及结构节点,结合铝板与深色金属漆的施工搭配,将传统中式建筑的厚重质感,通过现代施工工艺转化为轻盈简洁的建筑形态。
改良坡屋顶檐口细节节点图
建构与场域——色彩流动的活力乐园
漫步在大明湖周边的街巷中,常常可以看到红砖色调的老建筑,山东省图书馆就是其中的典型代表。在本项目的整体建筑立面上,我们选用仿红砖质感涂料与木纹铝合金材料,营造出温暖的主基调。这不仅是对泉城传统民居文化的一种延续,也为幼儿园增添了浓郁的人文气息。与此同时,浅灰色铝合金与深色金属漆的运用,为立面注入了现代感;而彩釉印刷玻璃和彩色金属格栅,则进一步提升了园区的活泼氛围。
在设计过程中明确建筑整体造型的尺寸参数、线条走向、节点衔接要求。其中造型尺寸参数需贴合幼儿园空间尺度,严控建筑层高、立面开间及进深尺寸,适配幼儿活动及教学使用需求;线条走向以简约中式线条为主,明确横向、纵向线条的标高、间距及延伸范围,规避繁复设计,凸显轻盈感;节点衔接重点明确造型线条与立面饰面的衔接方式,界定衔接节点的施工工艺及密封、固定要求,确保造型与各部位衔接顺畅、过渡自然,通过立面分区、材质搭配,凸显新中式风格的精致感,清晰传递传统中式学院的建筑内涵,确保造型落地效果。
围合空间——室内外空间融合 功能与体验兼顾
采用经典的围合式空间布局,以中心庭院为核心,四周建筑环抱形成整体。这里成为促进儿童充分互动交流的场所。本项目打破传统幼儿园封闭式走廊的设计模式,秉持“室内外空间融合、功能与体验兼顾”的核心原则。
在施工落地层面,明确连廊地面采用防滑、耐磨、易清洁的环保材料,以适应幼儿奔跑与活动需求,并落实无障碍设计,确保连廊与各功能区域顺畅衔接,消除高差障碍。连廊的施工图设计不仅满足了晴雨天的通行需要,更通过对色彩、光影与空间的细致把握,将交通通道转化为兼具探索性与趣味性的活动空间。这契合幼儿园“释放儿童天性、鼓励自由交流”的核心诉求,实现了设计理念与施工落地的高度统一。
风雨连廊细节节点图
环保材质——确保儿童活动的安全性
场地采用塑胶材质,确保儿童活动安全。活动布局充分契合儿童成长需求,旨在培养其身体协调能力、安全意识与色彩形态感知能力。场地中增设了整体塑胶铺面、多彩铺装、木质平台及适合幼儿的活动器材设施。
立面设计:
建筑造型采用新中式风格,通过连续的柱廊和丰富的中式建筑形态,既展现出精致而富有层次的建筑效果,也清晰传递出传统中式学院的建筑内涵。项目在注重建筑与原有环境和谐统一的同时,也体现了当代校园环境品质的显著提升。立面设计融入现代风格,运用真石漆、金属、彩釉玻璃等材料,并结合景观连廊的彩色铝合金格栅,整体色调简洁活泼,建筑立面舒展而清爽。
立面材料分析:建筑立面以砖纹质感涂料与木纹铝合金奠定温暖的主色调,同时运用浅灰色铝合金和深色金属漆增强立面的现代气息;彩釉印刷玻璃与彩色金属格栅的融入,则为幼儿园增添了活泼愉悦的氛围。
< 结语 | 一所幼儿园的设计答卷>
孩子们对世界充满好奇,“为什么”是他们最常说的语言。虽然还不识字,他们却以独特的方式“阅读”着生活这本百科全书;虽然尚未远行,他们的脑海中早已装着一个天马行空的“世界”。我们致力于营造优雅的人文氛围、活力的公共空间、开放的互动场所以及安全的校园环境,希望通过每一处细节的精心考量,为孩子们创造一个更加契合心智发育、助力健康成长的空间。
相关资讯
新作 | 以运营为导向的城市更新策略探索:经四小纬二城市更新项目实践
新作 | 精诚所至·金石为开:中国金都·国民黄金珠宝首饰美学工厂项目
新作 | 丝路绿洲・生命方舟:第三师图木舒克市总医院打造边疆医疗新标杆
新作 | 因势利导·意境婉约:云锦湖颂禧·品湖酒店
新作 | 医院更新项目范式样板:山东省立第三医院诊疗设施改造提升工程项目设计实践